Venkovní žaluzie
Venkovní žaluzie slouží ke stínění prosklených ploch na budovách ze strany exteriéru. Jsou vhodné pro bytové, občanské i průmyslové stavby. Díky umístění na fasádě budov zaručují vysokou efektivitu z pohledu snížení přehřívání interiérů. Pohyblivé lamely lze plynule nastavovat a regulovat tak osvětlení interiéru. V době, kdy žaluzie nejsou využívány, je možné je uschovat do schránky umístěné pokud možno nad okenním otvorem. Venkovní žaluzie se nejčastěji ovládají motorem prostřednictvím tlačítkového spínače, dálkového ovladače. Mohou být napojeny rovněž na inteligentní řídicí systém.
Funkce produktu ve stavbě
- Snížení tepelné zátěže vnitřního prostředí v letním období
- Ochrana před oslněním, regulace intenzity osvětlení
- Ochrana soukromí
- Ochrana proti hluku
- Omezení tepelných ztrát oknem
- Architektonický prvek
Užitné vlastnosti produktu
- Zamezení přímého prostupu slunečního svitu do interiéru
- Plynulá regulace množství světla v interiéru
- Možnost větrání během stínění
- Zrakový kontakt s okolím při odstínění přímého slunečního svitu do interiéru
- Možnost automatické regulace (dle polohy slunce, větru, deště, teploty v interiéru, ročního období atd.)
- Široká nabídka tvarů a šířek lamel
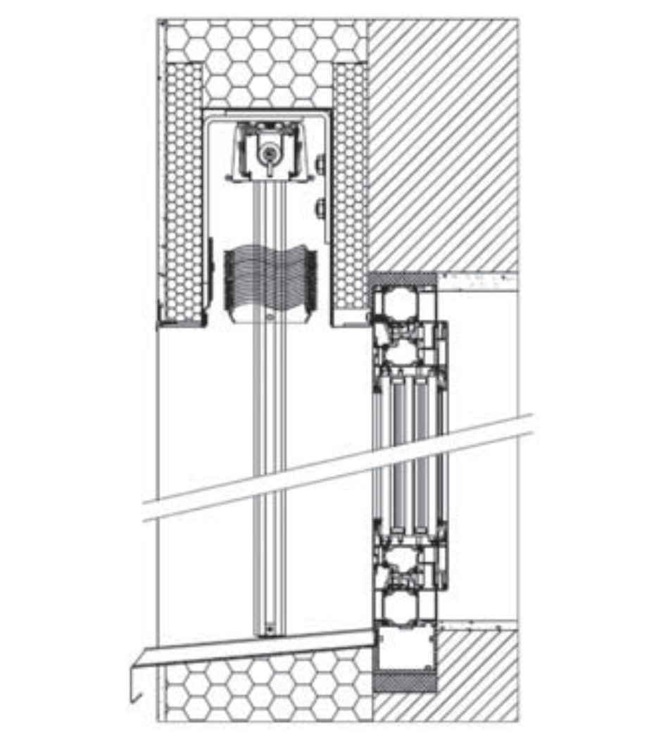
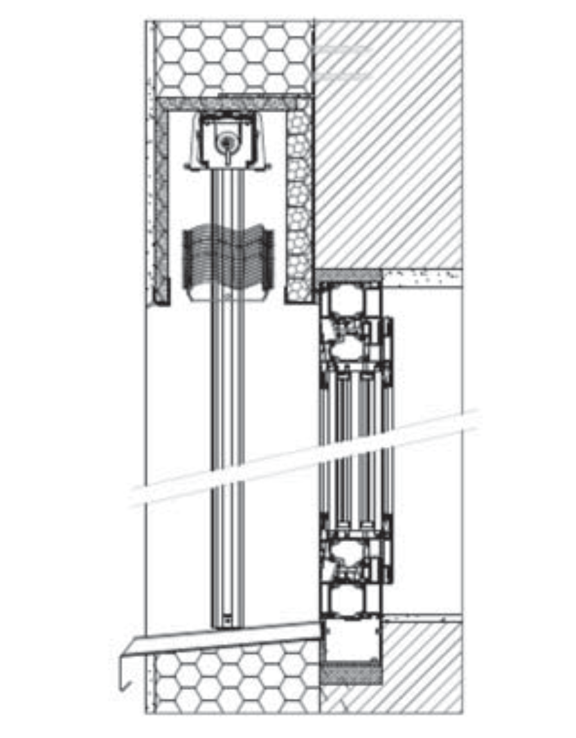
Technický popis produktu
Standartní provedení venkovní žaluzie – vedení v lištách/lanky, s krycím plechem, tvar lamely Z
Materiálové složení
Materiálové složení se liší dle typů výrobků a deklarovaných vlastností a dle jednotlivých výrobců.
| Pozice | Komponent | Materiál |
|---|---|---|
| 1 | Horní profil | ocel / hliník |
| 2 | Dolní profil | hliník |
| 3 | Krytky a čep dolního profilu | plast |
| 4 | Lamela | hliník lakovaný |
| 5 | Hřídel | hliník |
| 6 | Žebříček | polyester |
| 7 | Textilní pásek | polyester |
| 8 | Ložisko | plast |
| 9 | Vodicí lišta | hliník |
| 10 | Vodicí čepy | plast / zinková slitina |
| 11 | Držák vodicí lišty | hliník |
| 12 | Vodicí lanko | poplastovaná ocel |
| 13 | Horní držák vodicího lanka | ocel |
| 14 | Spodní držák vodicího lanka | hliník |
| 15 | Doraz koncových poloh | plast |
| 16 | Převodovka | plast + ocel |
| 17 | Průchodka | ocel |
| 18 | Držák horního profilu | ocel |
| 19 | Držák krycího plechu | ocel |
| 20 | Nástavec držáku plechu | ocel |
| 21 | Motor | – |
| 22 | Klika | ocel + hliník |
| 23 | Aretace vodicí lišty | ocel |
| 24 | Držák el. vodiče pohonu, | hliník |
| 25 | Závěs textilního pásku | plast |
| 26 | Krytka vodicí lišty | plast |
| 27 | Závěs žebříčku | plast / ocel |
| 28 | Držák kliky | plast |
Rozdělení produktu
Venkovní žaluzie lze členit dle několika základních parametrů:
- Tvar lamel
- Způsob umístění na budově
- Způsob montáže
- Provedení žaluzie
- Způsob vedení lamel
- Ovládání
- Alternativní technická řešení
Podle tvaru lamel
Na českém trhu jsou nabízeny především venkovní žaluzie s následujícími tvary lamel.
| Tvar lamely | Označení lamely | Šířka lamely | ||||||
|---|---|---|---|---|---|---|---|---|
| 100 mm | 90 mm | 80 mm | 70 mm | 65 mm | 60 mm | 50 mm | ||
| C flexi | ![]() |
![]() |
![]() |
![]() |
![]() |
|||
| C | ![]() |
![]() |
||||||
| Z | ![]() |
![]() |
||||||
| S | ![]() |
![]() |
||||||
| U | ![]() |
|||||||
Pozn.: Přesná šířka a tvar lamely se mohou dle jednotlivých výrobců mírně lišit.
Podle způsobu umístění na budově
- Přiznané – schránka žaluzie je viditelná
Provedení určené pro dodatečnou montáž, kdy je již finálně hotový obvodový plášť budovy. - Podomítkové – schránka žaluzie je skrytá pod fasádou
Žaluziová schránka je uzpůsobena pro překrytí izolační vrstvou, která je začleněna do fasády.



Podle způsobu montáže
- Podomítková příprava/montáž
- Dodatečná/přiznaná montáž
schránky pro podomítkovou montáž




Podle provedení žaluzie
- Standardní provedení – žaluzie rozdělena do více montážních částí
- Samostatná žaluzie – žaluzie tvoří jeden montážní celek


Podle způsobu vedení lamel
- Vodicí lanka
- Vodicí lišty
- podomítková vodicí lišta
- přiznaná vodicí lišta
- Kombinace vodicí lišty a lanka
- Řetězové vedení lamel žaluzie





Podle ovládání
- Klika
- Elektrický pohon
- Pružinové ovládání – pro nouzové východy



Alternativní technická řešení
- Venkovní žaluzie s nosičem mimo nábal
- Venkovní žaluzie šikmá
- Venkovní žaluzie se dvěma nosiči pro úzká okna
- Venkovní žaluzie s dvojím naklápěním lamel – Duo
- Venkovní žaluzie s oboustranným naklápěním lamel




naklápěním lamel

Technické normy
- ČSN EN 13659 Okenice a vnější žaluzie - Funkční a bezpečnostní požadavky
- ČSN EN 13120+A1 Vnitřní clony - Funkční a bezpečnostní požadavky
Stavební připravenost
Před montáží venkovních žaluzií by měly být dokončeny všechny stavební práce, aby se předešlo jejich možnému poškození nebo znečištění.
Ostění otvoru musí být rovné, hladké a suché a mělo by být zbaveno veškerých nečistot.
Musí být proveden předepsaný přívod elektroinstalace podle typu venkovních žaluzií a známa místa, kde budou umístěny ovladače (vypínače). V případě napojení na řídicí systémy, by tyto měly být již instalovány. Pro pohony by měl být samostatný proudový okruh s vlastním jističem.
V případě ručního ovládání (klika, popruh) musí být známa místa instalace těchto ovládacích prvků.
Každý druh stínění má svá přesná specifika a proto by se měla stavební připravenost předem řešit s dodavatelem stínění.
Údržba, opravy, čištění
Správná údržba venkovní žaluzie prodlužuje její životnost a zajišťuje bezproblémový a bezpečný provoz.
Čištění a údržba
Abys se předešlo nadměrnému opotřebení, je potřeba lamely žaluzie pravidelně čistit, nejlépe měkkým hadříkem nebo houbou navlhčenou vlažnou vodou. Agresivní čisticí prostředky nebo vysokotlaké čističe mohou vést k poškození žaluzie.
Mazání a mechanické součásti
Mechanické části žaluzie a motor nesmějí být mazány žádnými mazacími prostředky, protože nevhodné mazání může poškodit výrobek nebo narušit jeho správnou funkci.
Servis a opravy
Venkovní žaluzie nevyžaduje pravidelný servis. Pokud však dojde k poruše, například ke zvýšené hlučnosti nebo nepravidelnému pohybu žaluzie, je nutné kontaktovat dodavatele. Jakýkoli neodborný zásah do mechanických nebo elektronických částí žaluzie může ovlivnit platnost záruky, bezpečnost a funkčnost výrobku.
Bezpečnost při údržbě
Před údržbou je nutné žaluzii zajistit proti pohybu, u elektrických modelů odpojit přívod proudu. Práce smí být prováděna pouze s použitím vhodné stoupací techniky, například stabilních schůdků. Přidržování se žaluzie během údržby je zakázáno. Servisní úkony nad rámec běžné údržby smí provádět pouze odborně proškoleni pracovníci.
V případě motorického ovládání je třeba zajistit, aby se voda nedostala do elektrického příslušenství.















