Sítě proti hmyzu
Sítě proti hmyzu (venkovní clona) představují základní prvek k zabránění pronikání hmyzu přes otevřené okenní nebo dveřní otvory.
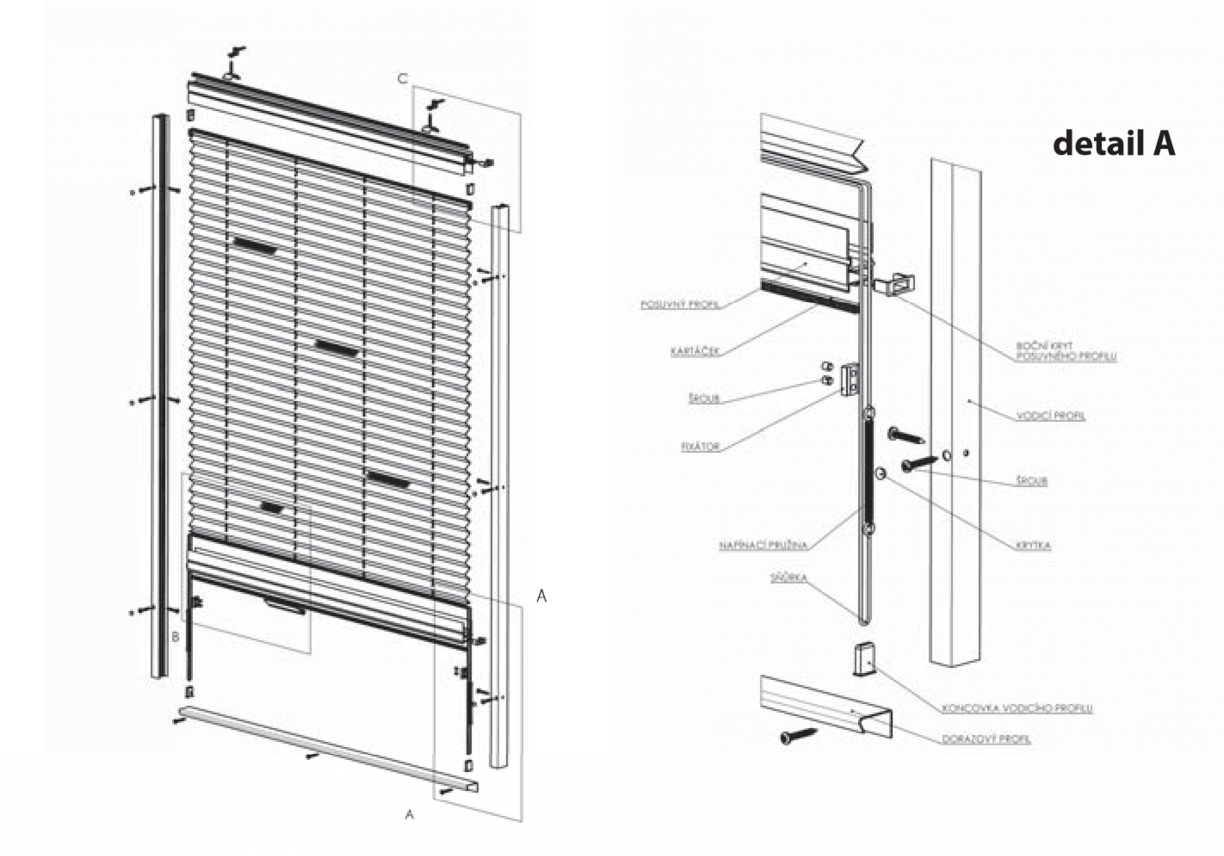
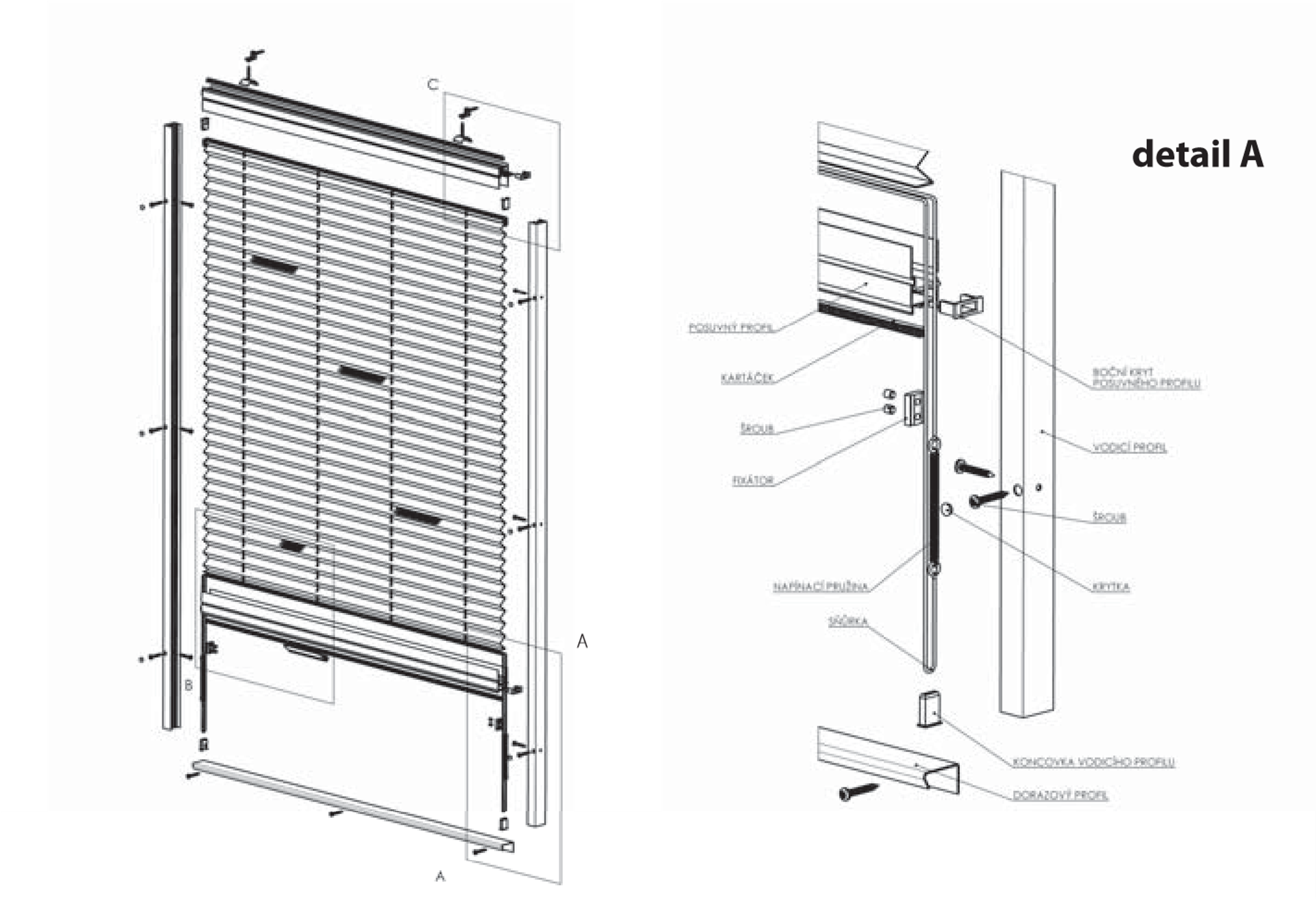
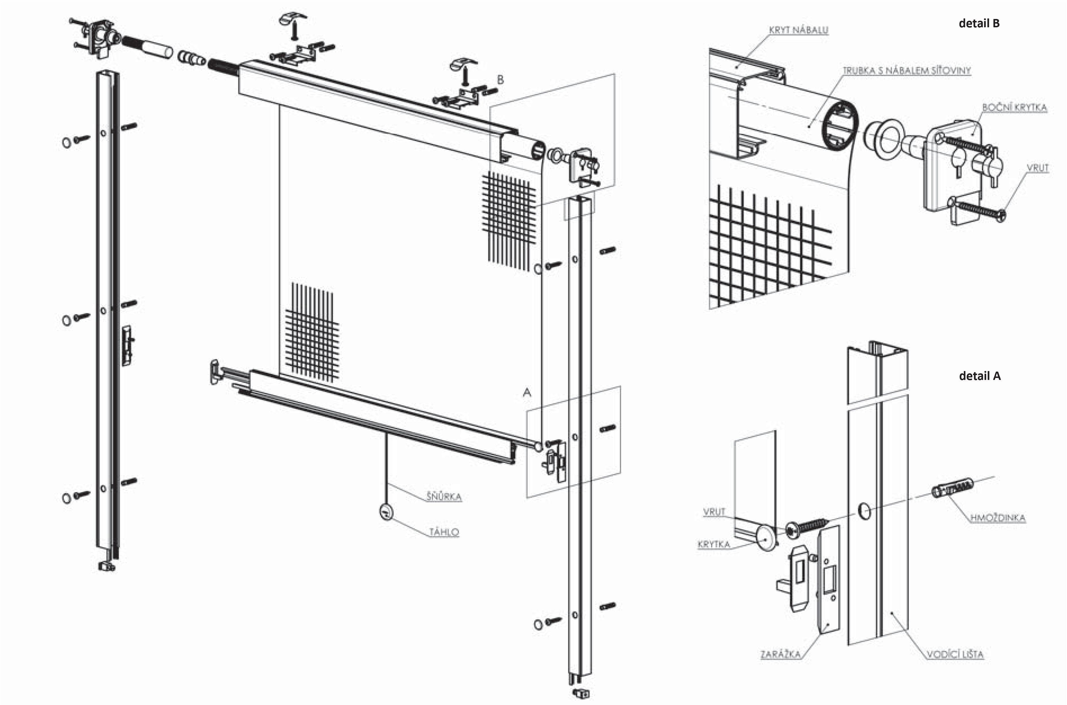
Hlavní součástí je síťovina umístěná do rámu nebo vodicích lišt. Primární použití je vhodné pro rodinné domy a administrativní budovy. Sítě se liší zejména způsobem provedení.

Funkce produktu ve stavbě
- Ochrana interiéru před hmyzem
Užitné vlastnosti produktu
- Výběr materiálu síťoviny
- Provedení rámu sítě v různých barvách RAL, imitacích dřeva
- Možnost atypického provedení
- Vysoká životnost
- Minimální nároky na údržbu
- Možnost kombinace s exteriérovou stínicí technikou
- Možnost protipylového provedení
Technický popis produktu
Materiálové složení
Materiálové složení se liší dle typů výrobků a deklarovaných vlastností a dle jednotlivých výrobců.
| Komponent | Pevná síť | Rolovací síť | Posuvná síť | Stahovatelná plisé síť | Dveřní síť |
|---|---|---|---|---|---|
| Profil | hliník | – | hliník | – | hliník |
| Výztuha | hliník | – | hliník | – | hliník |
| Spojení profilu | plast | – | plast | – | plast |
| Síťovina | sklovlákno potažené PVC hliník Protipylová- Polyester s PVC zátěrem, NANO částice |
sklovlákno potažené PVC |
sklovlákno potažené PVC hliník Protipylová- Polyester s PVC zátěrem, NANO částice |
sklovlákno potažené PVC |
sklovlákno potažené PVC hliník Protipylová- Polyester s PVC zátěrem, NANO částice |
| Box s tyčí | – | plast / hliník / ocel | – | – | – |
| Koncová lišta | – | plast / hliník | – | plast / hliník | – |
| Guma zajišťovací | guma / plast | – | guma / plast | – | guma / plast |
| Držák profilu | plast / hliník / ocel | – | plast / hliník / ocel | – | – |
| Madlo | plast / hliník | plast / hliník | plast / hliník | plast / hliník | plast / hliník |
| Kartáček | textilie | textilie | textilie | textilie | textilie |
| Pant | – | – | – | – | plast / hliník |
| Přídržný systém s magnetem | – | – | – | – | plast / hliník / ocel |
| Vodicí lišta | – | plast / hliník | plast / hliník | plast / hliník | – |
Rozdělení produktu
Sítě proti hmyzu se vyrábějí jak pro okenní, tak dveřní otvory a lze je členit dle několika základních parametrů:
- Způsob provedení
- Umístění
- Způsob ovládání
Podle způsobu provedení
- Pevná síť proti hmyzu
- Rolovací síť proti hmyzu
- Posuvná síť proti hmyzu
- Stahovatelná plisé síť proti hmyzu
- Otočná síť proti hmyzu





Podle umístění
- na okno
- na dveře
- integrovaná ve stínicí technice
Podle způsobu ovládání
- pevná – bez ovládání
- manuální
- motorické
Technické normy
- ČSN EN 13561 Vnější clony a markýzy - Funkční a bezpečnostní požadavky
- ČSN EN 13120+A1 Vnitřní clony - Funkční a bezpečnostní požadavky
Stavební připravenost
Pro úspěšnou instalaci sítě proti hmyzu je zapotřebí dostatečný prostor na rámu stavebního otvoru.
V případě motorického ovládání musí být proveden předepsaný přívod elektroinstalace a známa místa, kde budou umístěny ovladače (vypínače).
Každý typ sítí proti hmyzu má svá specifika, proto by se měla stavebním připravenost předem řešit s dodavatelem.
Údržba, opravy, čištění
Výrobek nevyžaduje mimořádnou údržbu.
Povrch hliníkového profilu se otírá prachovkou nebo navlhčenou měkkou textilní tkaninou či houbou. Používají se pouze mýdlové roztoky bez chemických přísad, o teplotě do 30 ºC, nepoužívají se agresivní čisticí prostředky, jako organická ředidla, rozpouštědla, čisticí písky, čisticí pasty, vyvíječe páry a silné alkalické čisticí prostředky. Při znečištění síťoviny (prachem), se používá jemné kartáčování nebo slabě nastavený ruční vysavač, aby nedošlo k vytržení síťoviny z drážky rámu nebo k jejímu protržení. Při čištění oken síť z okna demontujte (u rolovacích sítí vyrolujte), aby nemohlo dojít k jejímu poškození a aby síť nebránila v čištění.













